Модульный дом Aframe 35

Планировка дома свободная, вы сможете реализовать любую идею.
Площадь
34,8 м2
Комнаты
2
Этаж
1 (2)
Санузел
1
Габариты
5,5 х 4,4 м
Подходит для дач, глемпингов и баз отдыха.
Полностью готовый дом за 14 дней.
Не требуется разрешение на строительство.

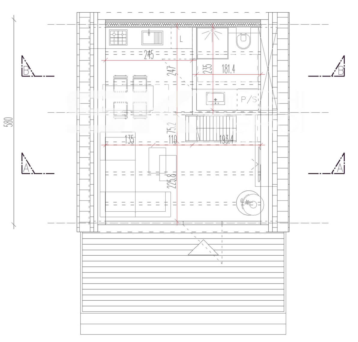
Пример планировки

1 этаж + мезонин
Вместимость: 2-4 человека
На первом этаже расположена уютная кухня-гостиная с камином и санузел.
Наверху спальная зона с возможностью размещения двуспальной кровати.

Описание

ФУНДАМЕНТ:
МОНОЛИТНАЯ Ж/Б ПЛИТА 25 СМ
Единая плита под всем домом. Выемка грунта, геотекстиль, песчаная подушка, гидроизоляционный материал, двойное армирование, опалубка, бетон М-300.
Подходит для всех типов грунтов, утепленный.
Балочная система
Кровля
Проектная документация
Остекление
Организация работ
Утепление
Доставка
В стоимость домокомплекта войдет
Монтаж
Силовой каркас: Готовый заводской комплект каркаса из деревянного строганного материала, обработанного огне-биозащитой.
Внутренняя отделка: Cyxaя строганная доска хвойных пород, евро-вагонка.
Отделка фасада: Имитация бруса, хвоя 140 х 20 х 6000 мм.
Полы дома: Шпунтованная строганная доска 21 х 95мм с направляющим брусом.
Кровля: Профлист Grand Line 0,45 мм; гидроизоляционная мембрана Изоспан АМ.
Утепление: Базальтовая вата.
Отопление/охлаждение: Теплый пол электрический в основном помещении и с/у, кондиционер, принудительная вентиляция.
Лестница межэтажная: строганая доска одномаршевая.

Водоподведение/водоотведение: точки ввода воды и канализации в дом с точками подключения в с/у (унитаз, раковина), разведение ХВС и ГВС трубами полипропилен. Бойлер 50л
ДОПОЛНИТЕЛЬНО:
Электрика: Проводка кабель 3х2,5мм, освещение кабель 2х0,75мм, электрический щит с УЗО.
Оснащение с/у: Инсталляция с навесным унитазом, душевой поддон, раковина, зеркало, смесители, полотенцесушитель.
Водоподведение/водоотведение: Точки ввода воды и канализации в дом с точками подключения в с/у (унитаз, раковина), разведение ХВС и ГВС трубами полипропилен. Бойлер 50л
БАЗОВАЯ КОМПЛЕКТАЦИЯ:
С заказом базовой комплектации вы получаете тёплый контур без инженерных систем и внутренней отделки.
Дом с отделкой рассчитывается индивидуально в зависимости от выбранных вами материалов.

С нами вы можете разработать индивидуальную планировку!

Мы готовы спроектировать дом, исходя из ваших задумок. Сделать соответствующий проект и изготовить по нему домокомплект для вашего участка. Для этого расскажите ваши пожелания нашему менеджеру, и мы бесплатно рассчитаем ваш будущий дом.
Галерея проекта

Порядок строительства дома под ключ

Приглашаем на экскурсию по построенным объектам

Мы не погружаем своих клиентов в вопросы организации бытовых условий и проживания рабочих, снабжения, электричество. Это исключительно наша зона ответственности.

Важная информация

Дома очень теплые и энергоэффективные.