BARN 93

Планировка дома свободная,вы сможете реализовать любую идею
Площадь
93 м2
Комнат
3
Этажа
1
Санузел
1
Габариты
13 x 14 М
Инновационная система вентиляции
Монолитное шумоизоляционное перекрытие

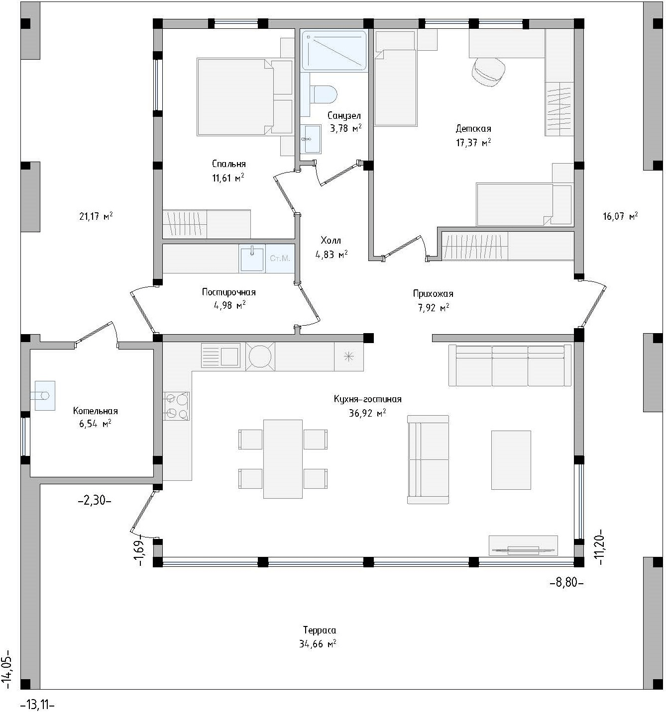
Пример планировки

1 этаж - 93 М2
  • Высыпайтесь благодаря инновационной вентиляции и притокам свежего воздуха.
  • Терраса 37 М2 для отдыха на природе в хорошую погоду.
  • Просторная кухня-гостиная 37 М2
  • Спальня и детская - идеально для семей с детьми.
  • Благодаря панорамным окнам в помещениях будет много света. За безопасность можно не волноваться, так как стекла противоударные.

Не видите подходящей планировки среди представленных?

Мы готовы спроектировать дом исходя из ваших задумок. Для этого расскажите ваши пожелания нашему менеджеру, и мы бесплатно рассчитаем ваш будущий дом.
Галерея проекта

Что влияет на стоимость дома?

Дом без отделки
Вы получаете тёплый контур без инженерных систем и внутренней отделки.
Дом с отделкой
Рассчитывается индивидуально в зависимости от выбранных вами материалов.
по запросу
по запросу
как дополнительная опция
Вариант 1:
МОНОЛИТНАЯ Ж/Б ПЛИТА 25 СМ
Единая плита под всем домом. Выемка грунта, геотекстиль, песчаная подушка, гидроизоляционный материал, двойное армирование, опалубка, бетон М-300.
Подходит для всех типов грунтов, утепленный.
Вариант 2:
СВАЙНЫЙ ФУНДАМЕНТ С МОНОЛИТНОЙ ПЛИТОЙ
Такой фундамент состоит из двух несущих конструкций: свайного поля и бетонной плиты.
Подходит для любых типов грунтов, в том числе сложных (пучинистый, с малой или большой глубиной промерзания, с высоким уровнем грунтовых вод), просадочных и сильно наводненных).
Вариант 3:
УСТРОЙСТВО ЦОКОЛЬНОГО ЭТАЖА
Монолитная плита с подвалом позволить обустроить дополнительное жилое пространство. Вы можете использовать его в качестве кладовой, комнаты отдыха или даже дополнительной спальни.
Такой тип фундамента обеспечивает высокую устойчивость, жесткость и надежность, а также предотвратит попадание влаги внутрь дома при строительстве на склонных к сезонному пучению участках и/или при высоком уровне подземных вод.
Выбранный вами тип фундамента

Что влияет на стоимость дома?

Дом без отделки
Оплата домокомплекта и монтажных работ.
Дом с отделкой
Подключение инженерных систем.
как дополнительная опция
Вариант 1:
МОНОЛИТНАЯ Ж/Б ПЛИТА 25 СМ
Единая плита под всем домом. Выемка грунта, геотекстиль, песчаная подушка, гидроизоляционный материал, двойное армирование, опалубка, бетон М-300.
Подходит для всех типов грунтов, утепленный.
Вариант 2:
СВАЙНЫЙ ФУНДАМЕНТ С МОНОЛИТНОЙ ПЛИТОЙ
Такой фундамент состоит из двух несущих конструкций: свайного поля и бетонной плиты.
Подходит для любых типов грунтов, в том числе сложных (пучинистый, с малой или большой глубиной промерзания, с высоким уровнем грунтовых вод), просадочных и сильно наводненных).
Вариант 3:
УСТРОЙСТВО ЦОКОЛЬНОГО ЭТАЖА
Монолитная плита с подвалом позволить обустроить дополнительное жилое пространство. Вы можете использовать его в качестве кладовой, комнаты отдыха или даже дополнительной спальни.
Такой тип фундамента обеспечивает высокую устойчивость, жесткость и надежность, а также предотвратит попадание влаги внутрь дома при строительстве на склонных к сезонному пучению участках и/или при высоком уровне подземных вод.
Вы получаете тёплый контур без инженерных систем и внутренней отделки.
Выбранный вами тип фундамента
Авторский дизайн и отделка всех помещений.
Балочная система
Кровля
Проектная документация
Остекление
Организация работ
Утепление
Доставка
В стоимость домокомплекта войдет
Монтаж
Вариант 1
Заводской комплект дома
Монтаж комплекта дома
  • Каркас из клееной балки с сечением лицевых столбов 200 мм
  • PIR-утеплитель в кровлю 120 мм и стены 80 мм
  • Двухкамерные энергоэффективные панорамные стеклопакеты
  • Монтаж фундамента
  • Монтаж заводского комплекта
  • Разгрузо-погрузочные работы
  • Организация строительного процесса
  • Технический надзор
Кровля с работой
  • Цементно-песчаная черепица
  • Водосточная система
  • Снегозадержание
  • Окна на открывание
  • Итальянский крепёж Rothoblaas, герметики, уплотнители
Вариант 2
Заводской комплект дома
Монтаж комплекта дома
  • Каркас из клееной балки с сечением лицевых столбов 240 мм
  • PIR-утеплитель в кровлю 150 мм и стены 120 мм
  • Монолитное шумоизоляционное перекрытие со встроенным тёплым полом
  • Монтаж заводского комплекта
  • Разгрузо-погрузочные работы
  • Организация строительного процесса
  • Технический надзор
Монолитный фундамент с работой
  • Устройство подготовки и закладных
  • Армирование двойной сеткой
  • Заливка бетоном
Кровля с работой
  • Цементно-песчаная черепица
  • Водосточная система
  • Снегозадержание
  • Окна на открывание
  • Итальянский крепёж Rothoblaas, герметики, уплотнители
  • Монолитное шумоизоляционное перекрытие со встроенным тёплым полом
Вариант 1, а также:
  • Каркас из клееной балки с сечением лицевых столбов 240 мм
  • PIR-утеплитель в кровлю 150 мм и стены 120 мм
  • Трехкамерные энергоэффективные панорамные стеклопакеты
Балочная система
Кровля
Проектная документация
Остекление
Организация работ
Утепление
Доставка
В стоимость домокомплекта войдет
Монтаж
Заводской комплект дома
Монтаж комплекта дома
  • Монтаж фундамента
  • Монтаж заводского комплекта
  • Разгрузо-погрузочные работы
  • Организация строительного процесса
  • Технический надзор
Кровля с работой
  • Цементно-песчаная черепица
  • Водосточная система
  • Снегозадержание
  • Окна на открывание
  • Итальянский крепёж Rothoblaas, герметики, уплотнители
  • Каркас из клееной балки с сечением лицевых столбов 200 мм
  • PIR-утеплитель в кровлю 120 мм и стены 80 мм
  • Двухкамерные энергоэффективные панорамные стеклопакеты
Заводской комплект дома
Монтаж комплекта дома
  • Монтаж заводского комплекта
  • Разгрузо-погрузочные работы
  • Организация строительного процесса
  • Технический надзор
Монолитный фундамент с работой
  • Устройство подготовки и закладных
  • Армирование двойной сеткой
  • Заливка бетоном
Кровля с работой
  • Цементно-песчаная черепица
  • Водосточная система
  • Снегозадержание
  • Окна на открывание
  • Итальянский крепёж Rothoblaas, герметики, уплотнители
  • Монолитное шумоизоляционное перекрытие со встроенным тёплым полом
  • Каркас из клееной балки с сечением лицевых столбов 240 мм
  • PIR-утеплитель в кровлю 150 мм и стены 120 мм
  • Трехкамерные энергоэффективные панорамные стеклопакеты
как дополнительная опция
Фундамент

Порядок строительства дома под ключ

Приглашаем на экскурсию по построенным объектам

Смотреть также

BARN 95
Комнат
3
Площадь
95 м2
Этажа
1
стоимость по запросу
BARN 160
Комнат
5
Площадь
160 м2
Этажей
2
стоимость по запросу

Мы не погружаем своих клиентов в вопросы организации бытовых условий и проживания рабочих, снабжения, электричество. Это исключительно наша зона ответственности.

Важная информация

Дома очень теплые и энергоэффективные