BARN 170

Планировка дома свободная,вы сможете реализовать любую идею
Площадь
170 м2
Комнаты
4
Этаж
1
Санузел
2
Габариты
15,8 x 12 м
Инновационная система вентиляции
Монолитное шумоизоляционное перекрытие

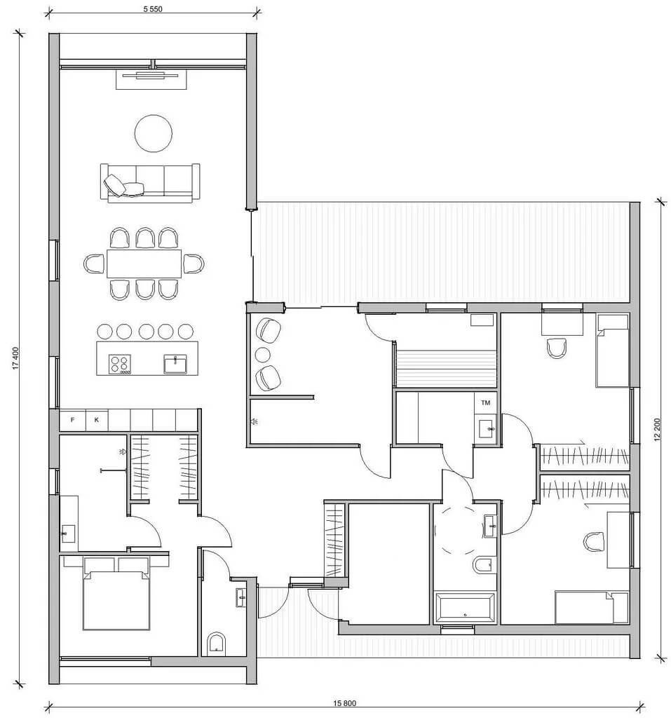
Пример планировки

1 этаж - 170 М2
  • Терраса для отдыха на природе в хорошую погоду.
  • Благодаря панорамным окнам в помещениях будет много света. За безопасность можно не волноваться, так как стекла противоударные.
  • Высыпайтесь благодаря инновационной вентиляции и притокам свежего воздуха.

С нами вы можете разработать индивидуальную планировку!

Мы готовы спроектировать дом, исходя из ваших задумок. Сделать соответствующий проект и изготовить по нему домокомплект для вашего участка. Для этого расскажите ваши пожелания нашему менеджеру, и мы бесплатно рассчитаем ваш будущий дом.
Галерея проекта

Что влияет на стоимость дома?

Дом без отделки
Вы получаете тёплый контур без инженерных систем и внутренней отделки.
Дом с отделкой
Рассчитывается индивидуально в зависимости от выбранных вами материалов.
по запросу
по запросу
как дополнительная опция
Вариант 1:
МОНОЛИТНАЯ Ж/Б ПЛИТА 25 СМ
Единая плита под всем домом. Выемка грунта, геотекстиль, песчаная подушка, гидроизоляционный материал, двойное армирование, опалубка, бетон М-300.
Подходит для всех типов грунтов, утепленный.
Вариант 2:
СВАЙНЫЙ ФУНДАМЕНТ С МОНОЛИТНОЙ ПЛИТОЙ
Такой фундамент состоит из двух несущих конструкций: свайного поля и бетонной плиты.
Подходит для любых типов грунтов, в том числе сложных (пучинистый, с малой или большой глубиной промерзания, с высоким уровнем грунтовых вод), просадочных и сильно наводненных).
Вариант 3:
УСТРОЙСТВО ЦОКОЛЬНОГО ЭТАЖА
Монолитная плита с подвалом позволить обустроить дополнительное жилое пространство. Вы можете использовать его в качестве кладовой, комнаты отдыха или даже дополнительной спальни.
Такой тип фундамента обеспечивает высокую устойчивость, жесткость и надежность, а также предотвратит попадание влаги внутрь дома при строительстве на склонных к сезонному пучению участках и/или при высоком уровне подземных вод.
Выбранный вами тип фундамента

Что влияет на стоимость дома?

Дом без отделки
Оплата домокомплекта и монтажных работ.
Дом с отделкой
Подключение инженерных систем.
как дополнительная опция
Вариант 1:
МОНОЛИТНАЯ Ж/Б ПЛИТА 25 СМ
Единая плита под всем домом. Выемка грунта, геотекстиль, песчаная подушка, гидроизоляционный материал, двойное армирование, опалубка, бетон М-300.
Подходит для всех типов грунтов, утепленный.
Вариант 2:
СВАЙНЫЙ ФУНДАМЕНТ С МОНОЛИТНОЙ ПЛИТОЙ
Такой фундамент состоит из двух несущих конструкций: свайного поля и бетонной плиты.
Подходит для любых типов грунтов, в том числе сложных (пучинистый, с малой или большой глубиной промерзания, с высоким уровнем грунтовых вод), просадочных и сильно наводненных).
Вариант 3:
УСТРОЙСТВО ЦОКОЛЬНОГО ЭТАЖА
Монолитная плита с подвалом позволить обустроить дополнительное жилое пространство. Вы можете использовать его в качестве кладовой, комнаты отдыха или даже дополнительной спальни.
Такой тип фундамента обеспечивает высокую устойчивость, жесткость и надежность, а также предотвратит попадание влаги внутрь дома при строительстве на склонных к сезонному пучению участках и/или при высоком уровне подземных вод.
Вы получаете тёплый контур без инженерных систем и внутренней отделки.
Выбранный вами тип фундамента
Авторский дизайн и отделка всех помещений.
Балочная система
Кровля
Проектная документация
Остекление
Организация работ
Утепление
Доставка
В стоимость домокомплекта войдет
Монтаж
Вариант 1
Заводской комплект дома
Монтаж комплекта дома
  • Каркас из клееной балки с сечением лицевых столбов 200 мм
  • PIR-утеплитель в кровлю 120 мм и стены 80 мм
  • Двухкамерные энергоэффективные панорамные стеклопакеты
  • Монтаж фундамента
  • Монтаж заводского комплекта
  • Разгрузо-погрузочные работы
  • Организация строительного процесса
  • Технический надзор
Кровля с работой
  • Цементно-песчаная черепица
  • Водосточная система
  • Снегозадержание
  • Окна на открывание
  • Итальянский крепёж Rothoblaas, герметики, уплотнители
Вариант 2
Заводской комплект дома
Монтаж комплекта дома
  • Каркас из клееной балки с сечением лицевых столбов 240 мм
  • PIR-утеплитель в кровлю 150 мм и стены 120 мм
  • Монолитное шумоизоляционное перекрытие со встроенным тёплым полом
  • Монтаж заводского комплекта
  • Разгрузо-погрузочные работы
  • Организация строительного процесса
  • Технический надзор
Монолитный фундамент с работой
  • Устройство подготовки и закладных
  • Армирование двойной сеткой
  • Заливка бетоном
Кровля с работой
  • Цементно-песчаная черепица
  • Водосточная система
  • Снегозадержание
  • Окна на открывание
  • Итальянский крепёж Rothoblaas, герметики, уплотнители
  • Монолитное шумоизоляционное перекрытие со встроенным тёплым полом
Вариант 1, а также:
  • Каркас из клееной балки с сечением лицевых столбов 240 мм
  • PIR-утеплитель в кровлю 150 мм и стены 120 мм
  • Трехкамерные энергоэффективные панорамные стеклопакеты
Балочная система
Кровля
Проектная документация
Остекление
Организация работ
Утепление
Доставка
В стоимость домокомплекта войдет
Монтаж
Заводской комплект дома
Монтаж комплекта дома
  • Монтаж фундамента
  • Монтаж заводского комплекта
  • Разгрузо-погрузочные работы
  • Организация строительного процесса
  • Технический надзор
Кровля с работой
  • Цементно-песчаная черепица
  • Водосточная система
  • Снегозадержание
  • Окна на открывание
  • Итальянский крепёж Rothoblaas, герметики, уплотнители
  • Каркас из клееной балки с сечением лицевых столбов 200 мм
  • PIR-утеплитель в кровлю 120 мм и стены 80 мм
  • Двухкамерные энергоэффективные панорамные стеклопакеты
Заводской комплект дома
Монтаж комплекта дома
  • Монтаж заводского комплекта
  • Разгрузо-погрузочные работы
  • Организация строительного процесса
  • Технический надзор
Монолитный фундамент с работой
  • Устройство подготовки и закладных
  • Армирование двойной сеткой
  • Заливка бетоном
Кровля с работой
  • Цементно-песчаная черепица
  • Водосточная система
  • Снегозадержание
  • Окна на открывание
  • Итальянский крепёж Rothoblaas, герметики, уплотнители
  • Монолитное шумоизоляционное перекрытие со встроенным тёплым полом
  • Каркас из клееной балки с сечением лицевых столбов 240 мм
  • PIR-утеплитель в кровлю 150 мм и стены 120 мм
  • Трехкамерные энергоэффективные панорамные стеклопакеты
как дополнительная опция
Фундамент

Порядок строительства дома под ключ

Приглашаем на экскурсию по построенным объектам

Смотреть также

BARN 153
Комнат
4
Площадь
153 м2
Этажа
2
стоимость по запросу
ПОДРОБНЕЕ
BARN 93
Комнат
3
Площадь
93 м2
Этаж
1
стоимость по запросу

Мы не погружаем своих клиентов в вопросы организации бытовых условий и проживания рабочих, снабжения, электричество. Это исключительно наша зона ответственности.

Важная информация

Дома очень теплые и энергоэффективные